Morphett Vale 7 Janet Crescent

Enquire Now

Watch
Video
< >

For Sale
Best offer by 1pm, Mon 15th Dec

×

Quick Loan Calculator

  • Purchase Price 0
  • Deposit 0
  • Loan Amount 0
  • Monthly Repayment 0
  • Total Repayments 0
We can help you get the best deal from a range of lenders including large banks, key regional banks, credit unions and non-bank lenders. No stress, no fuss.
Save on a loan now
Disclaimer: This calculator does not include any taxes, fees, duties or levies. Before deciding on a loan product, you should seek independent financial advice from an a licensed financial adviser.

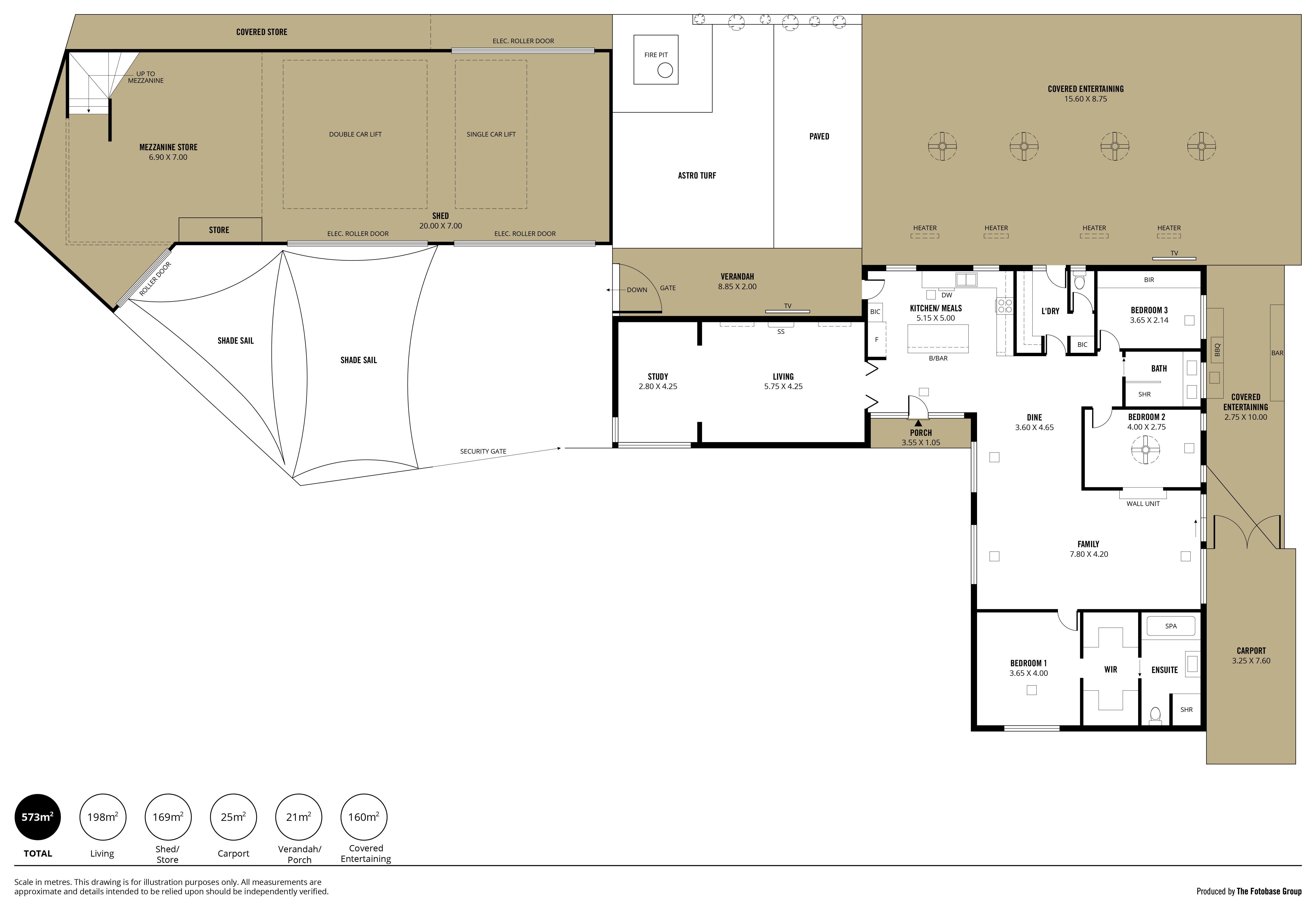
An Opportunity of a Lifetime and Lifestyle!

4 2 15

Open Times

Share This Property


WHAT AN AMAZING OPPORTUNITY! 21m x 7m SHED & 15m x 8m PERGOLA plus so much more, set on some 1140sqm!
ROOM FOR TRUCKS, BOATS, CARAVANS AND SO MUCH MORE!

Offering an unparalleled combination of luxury, space and incredible entertaining zones, this fully upgraded property delivers a standard of living rarely found. With every detail thoughtfully designed, this is the ultimate home for those who love to entertain, need exceptional storage, or simply want a high-quality, move-in ready lifestyle.

The list of features is extensive - here is a breakdown of this amazing property:

Exceptional Outdoor Entertaining – Your Private Resort
* 8m x 15m pitched pergola – an enormous all-weather hub for gatherings
* Outdoor kitchen with plumbed-in BBQ, drink fridge, ice machine and a built-in bench table
* 3 x outdoor TVs included
* 4 x outdoor fans, 4 x ceramic heaters, and 3 x halogen heat lamps for year-round comfort
* Fire pit area, all low-maintenance grounds
* Exceptional outdoor lighting creating an impressive ambience
* Security Camera system for peace of mind

Incredible Shedding & Storage -
* Massive 21m x 7m shed with 2 x 5m wide roller doors - all concreted for convenience
* 2.7m roller door clearance plus extra-height internal storage
* Built-in cupboards and work bench
* Rear roller door for additional storage options
* 3m clearance with kitted out with Mezzanine Floor with stairs, creates amazing additional storage!
* Super secure with Auto Sliding Front Gate + additional manual slider

Energy Efficient & Future Ready!
* 10KW solar system paired with 3 x Energizer Solar Batteries
* Multiple living spaces, offering comfort and versatility
* New Bosch dishwasher + Built-in Panasonic microwave
* Ariston induction cooktop and oven
* Versatile layout - 3 bedrooms + large Home Office / 4th bedroom / Retreat off main lounge
* Island bench kitchen ideal for family living and hosting
* Luxurious ensuite featuring spa bath and heated towel rack
* Huge his-and-hers walk-in robe
* Fully renovated main bathroom with dual sinks and a stunning double vanity
* Ducted reverse-cycle zoned air-conditioning (approx. 1 year old)
* Mitsubishi split-system in main lounge for added climate flexibility

All this on a rare and substantial 1,140sqm allotment in a quiet court, imagine this as your own amazing Sanctuary!

What a convenient location! Central to Colonnades and Southgate Square Shopping Centres, several local schools, public transport is available at the end of the street, plus enjoy easy access to the Southern Expressway and Train Station, which makes the commute into the CBD quick and easy. All this with lovely parks/reserves and wetlands within walking distance, plus the popular southern beaches and wineries of the Fleurieu are only a short drive away!

This property is truly unlike anything else, offering exceptional entertaining spaces, premium shedding and security, modern interior upgrades, and significant energy efficiency. Perfect for families, trades, car enthusiasts, or anyone seeking the ultimate lifestyle property. It's an opportunity of a lifetime and lifestyle!

Best offers by 1pm, Monday 15th December (unless sold prior) *
For more information, please contact your local dynamic duo:
Adam Farrelly - 0401 477 767
Marg Kneebone - 0400 144 520
Proudly brought to you by Century 21 Coast to Vines Group
RLA 321648

Disclaimer: We are of the understanding that the information provided is accurate however we cannot guarantee accuracy and interested parties should make and rely on their own enquires to obtain legal and financial advice.

Property Information

  • Land area approx 1140sqm

Property Features

  • Carports 2
  • Car Spaces 5
  • Garages 8
Century 21 Coast to Vines Group Coast to Vines Group
70 Dyson Road
Noarlunga Centre SA 5168
 
Phone08 8382 1212  
 
 


Local Information Morphett Vale

Education

Nearest Government Schools

  • Morphett Vale Primary School
  • Pimpala Primary School
  • Flaxmill School P-6
  • Morphett Vale East School
  • Reynella South Primary School
  • Lonsdale Heights Primary School

Nearest Private Schools

  • Antonio Catholic School
  • Southern Vales Christian College - Morphett Vale Campus
  • Sunrise Christian School Morphett Vale
  • Calvary Lutheran Primary School
  • Woodcroft College
  • Prescott College Southern

Local Amenities

Services

  • Morphett Vale Post Office
  • Christie Downs Fire Station
  • Reynella Post Office
  • Christies Beach Police Station

Viticulture

  • Hardys Winery
  • Hardys Reynella Winery
  • St Francis Winery
  • Patritti Winery

Parks

  • Cottage Lane Reserve
  • Asor Park Reserve
  • Christies Beach Caravan Park
  • Hallett Cove Conservation Park

Sport and Recreation

  • Noarlunga Downs Oval
  • Bice Oval

Community Facility

  • Hallett Cove Community Centre